
P R O J E C T E N

Loft 405 ontwikkelt, renoveert en bouwt aan vastgoedprojecten. Samen met gedreven partijen transformeren wij prachtige panden met potentie.
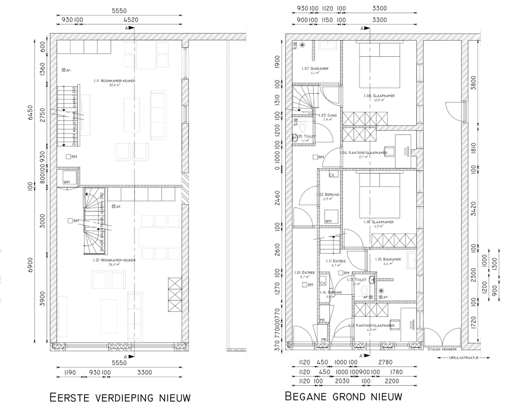
B&B Tante Ursula - Ursulastraatje te Venlo
Het Ursulastraatje, in de volksmond ook bekend als de Floddergats, is een van de meest karakteristieke doorgangen in de Venlose Binnenstad. Dit smalle straatje kent een rijke historie die teruggaat tot de middeleeuwen.
In 2021 is het pand gekocht en hebben wij het met behoud van eigen karakter getransformeerd naar twee moderne appartementen met energieklasse A.
Sinds december 2024 is B&B Tante Ursula geopend om gasten te ontvangen.






Transformatie Oosterse Zwaan naar luxe appartementen
Het voorliggende plan behelst de transformatie van het voormalige Chinees Indisch restaurant "De Oosterse Zwaan" naar vier woningen en vijf luxe appartementen.
De plannen zijn de afgelopen maanden veelvuldig beoordeeld geworden door de Monumenten Commissie en in de transformatie wordt nadrukkelijk rekening gehouden met de monumentale status en de bijbehorende monumentale eigenschappen van het object.
De woningen en appartementen worden volgens de laatste bouweisen en energiewensen ontwikkeld waardoor Grubbenvorst er voor de komende decennia een passend object bijkrijgt aan de kern van het dorp, het Pastoor Vullinghsplein.
Iedere woning en appartement krijgt een eigen parkeerplaats. De overige parkeerplaatsen worden via de vereniging van eigenaren ter beschikking gesteld aan de bewoners. De appartementen krijgen een gezamenlijke buitenruimte aan de voor- en zijkant van het object.






Wonen in het centrum van Venlo
Het voorliggende plan behelst de transformatie van twee monumentale gebouwen aan de Gasthuisstraat naar 6 luxe afgewerkte appartementen.
De plannen zijn de afgelopen maanden veelvuldig beoordeeld geworden door de Monumenten Commissie en in de transformatie wordt nadrukkelijk rekening gehouden met de monumentale status en de bijbehorende monumentale eigenschappen van het object.
De appartementen worden volgens de laatste bouweisen en energiewensen ontwikkeld. In overleg met de Gemeente Venlo worden de voorgevels, kozijnen en daken vernieuwd met respect voor het monument. Naar verwachting zullen wij begin 2026 beginnen met de verbouwing.





